
Stich With Us
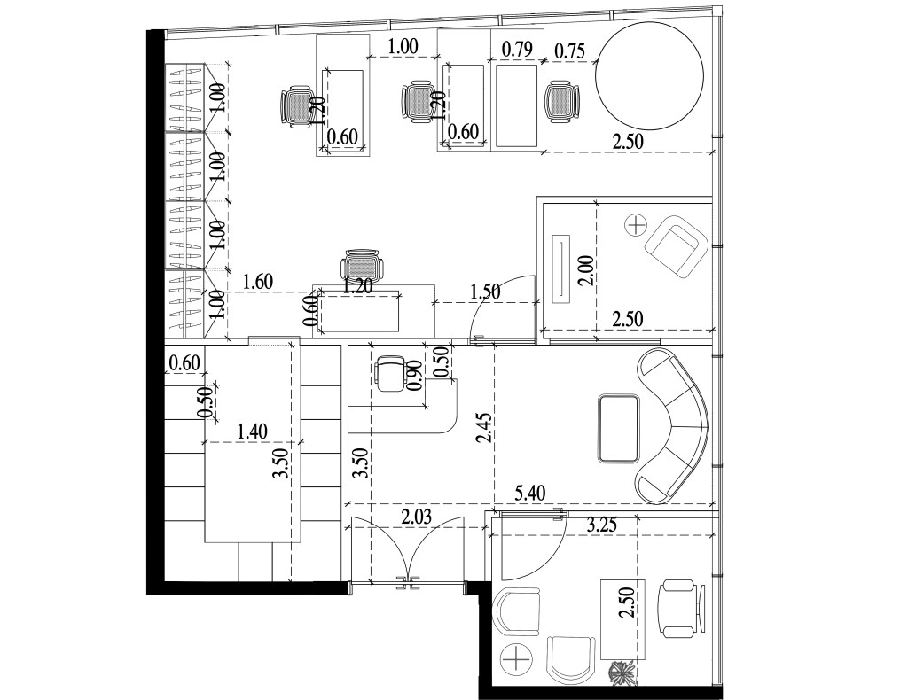
مشروع تصميم مكتب مميز يتميّز بقدرته على استيعاب أنشطة متعددة ضمن مساحة محدودة نسبيًا. وقد تم تحقيق النجاح فيه من خلال دراسة متعمقة لاحتياجات العميل، وتقديم مخططات تفصيلية للإضاءة والكهرباء بما يتوافق مع متطلباتهم، إلى جانب إرشادات حول الألوان والأساليب التصميمية الموصى بها.
مشروع تصميم مكتب
احجز استشارتك

